更新日:2026.04.01
更新日:2026.04.01
神奈川県横浜市西区みなとみらい3-3-3
みなとみらい線「みなとみらい」駅徒歩4分
JR・横浜市営地下鉄ブルーライン「桜木町」駅徒歩7分
地上28階 地下1階
121,726.85㎡
OAフロア
光・高速
インターネット
トイレ男女別
駐車場設備
[形式・募集台数]
詳細はお問い合わせ下さい
| フロア | 用途 | 床面積(契約面積) | 入居時期 | 図面(クリックで拡大) |
|---|---|---|---|---|
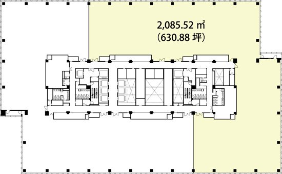
| 7F2-4 | 事務所 | 2,085.52㎡ (630.88坪) |
即可 |
![]() |
| 15F | 事務所 | 4,152.04㎡ (1,255.99坪) |
即可 |
![]() |
| 16F | 事務所 | 4,152.04㎡ (1,255.99坪) |
即可 |
![]() |
| 17F | 事務所 | 4,152.04㎡ (1,255.99坪) |
即可 |
![]() |
| フロア/用途 | 床面積(契約面積) | 入居時期 |
|---|---|---|
| 7F2-4 事務所 |
2,085.52㎡ (630.88坪) |
即可 |
![]() 図面を |
||
| フロア/用途 | 床面積(契約面積) | 入居時期 |
|---|---|---|
| 15F 事務所 |
4,152.04㎡ (1,255.99坪) |
即可 |
![]() 図面を |
||
| フロア/用途 | 床面積(契約面積) | 入居時期 |
|---|---|---|
| 16F 事務所 |
4,152.04㎡ (1,255.99坪) |
即可 |
![]() 図面を |
||
| フロア/用途 | 床面積(契約面積) | 入居時期 |
|---|---|---|
| 17F 事務所 |
4,152.04㎡ (1,255.99坪) |
即可 |
![]() 図面を |
||




ご質問・ご相談もお気軽に!
移転のことなら何でもお任せください!